
Métamorphose d’une maison historique
LA TOUR DU PIN (38)
750 m²
1er trimestre 2022
Contemporain, minimaliste, design épuré
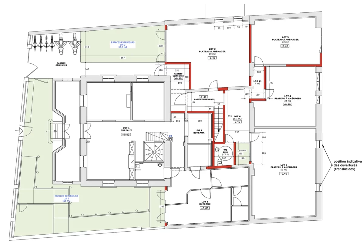
Cette ancienne maison historique a été entièrement repensée pour accueillir un programme immobilier d’exception :
- 4 logements situés aux étages, offrant des espaces lumineux et optimisés.
- 4 plateaux à aménager au rez-de-chaussée, adaptés à divers usages futurs.
- Un cabinet médical de dentistes intégré dans la bâtisse principale, alliant modernité et charme patrimonial.


Particularités
- Préservation du patrimoine architectural: les façades en pierre et les éléments caractéristiques de la maison historique ont été restaurés avec soin pour conserver l’authenticité du lieu.
- Modernisation des espaces intérieurs: intégration d’équipements contemporains et de nouvelles circulations pour répondre aux exigences actuelles, notamment avec l’ajout d’un escalier hélicoïdal pour desservir les logements en étage.
- Optimisation de la luminosité: création d’ouvertures translucides au rez-de-chaussée, apportant lumière naturelle et intimité dans les plateaux à aménager.
- Contraste harmonieux des matériaux: association du métal corten et des teintes beige clair pour les menuiseries et enduits, créant un dialogue subtil entre modernité et tradition.
- Espaces extérieurs valorisés: aménagement de terrasses et de jardins pour prolonger les espaces de vie et offrir des lieux de détente au cœur du projet.
- Cabinet médical pensé pour l’accueil des patients: conception d’un espace fonctionnel et accueillant, alliant design épuré et ergonomie.
Projet réalisé en collaboration avec De l’Art à la Matière – Nathalie Dufour (architecte d’intérieur).











